TERMOVAINAS

Cuando el tubo de protección de un termopar o termorresistencia está sujeto a altas presiones resultantes del fluido de líquidos o gases, se recomienda comúnmente la utilización de termovainas mecanizadas.
En esta sección se describen los modelos y características de las termovainas fabricadas a pedido de acuerdo a las necesidades del cliente.
Son provistas en varios modelos con o sin brida de acuerdo a la aplicación específica.

Cuidados de fabricación
Para garantizar un perfecto montaje y una vida útil satisfactoria, las termovainas son fabricadas dentro de rigurosos controles dimensionales conforme a diseños específicos y tolerancias.
La soldadura de las bridas, se realiza en atmósfera de gas inerte (TIG) para evitar oxidación, obteniéndose con esto mayor penetración de la soldadura, menor porosidad y mayor resistencia mecánica.

Termovainas Tipo TeVR

Especificación
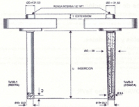
Termovainas Tipo TeVB
Nota: Tipo de Brida
1) Con cara lisa
2) Con cara con resalto
3) con cara con junta para anillo
4) Otras especificar
Especificación
Termopar con Termovainas Tipo TTeVR
Especificación
Termopar con Termovainas Tipo TTeVB
Especificación
Termocupla compactada con termovaina - Tipo CTeVR
Termocupla compactada con termovaina - Tipo TCTeVB
Especificación
 
MOL / Cristian Bastanti - Webmaster I molconsultora@gmail.com